Proyecto Piloto E-REDES Portugal MT/BT




Proyecto piloto de redes de MT/BT en Portugal
PORTUGAL
Servicios contratados:
- Estudios técnicos para nuevos puntos de conexión en BT
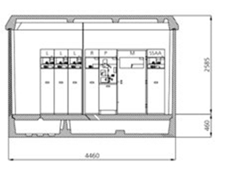
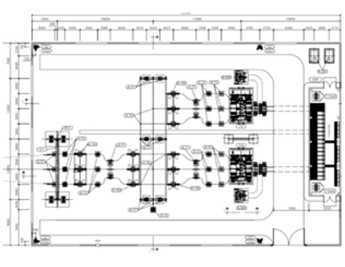
- Anteproyecto y gestión de autorizaciones para proyectos de MT
- Proyectos de líneas de MT



